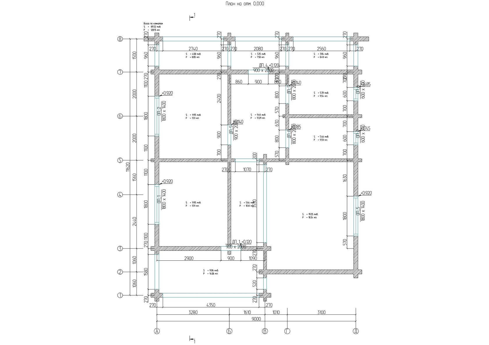
Новости строительства

Большой дом из профилированного бруса в Нолинске